分譲地について
予約制完成内覧開催中
利便性と豊かな自然が調和する『岡本5丁目』。
桜の名所「岡本南公園」が近く、周辺はスーパーや病院など生活に必要な施設が充実。
阪急「岡本」駅徒歩約5分、JR「摂津本山」駅徒歩約6分、2沿線利用可能。
阪急「岡本」駅は特急停車駅となっており、大阪・神戸へのアクセスがスムーズ。





| 名称 | MORES神戸市東灘区岡本5丁目PROJECT |
| 所在地 | 神戸市東灘区岡本5丁目6-6(旧住居表示) |
| 交通 | 阪急神戸線 「岡本」駅 徒歩約5分 |
| 地目 | 宅地 |
| 用途地域 | 第一種低層住居専用地域 |
| 建ぺい率 | 60% |
| 容積率 | 150% |
| 道路幅員 | 西側 約6.6m |
| 総区画数 | 限定1区画 |
| 土地面積 | 125.52㎡(約37.96坪) |
| 取引態様 | 媒介 |
| 情報登録日 | 2025年7月 |
街区画

| 号地 | 土地面積 | 建物面積 | 新築一戸建価格(税込) |
| コンセプトハウス | 125.52㎡ (37.96坪) | 128.88㎡(38.98坪) | 14,500万円 |
※面積や記載プラン・床暖房の位置など現況により変更になる場合があります。。
※お車や植栽、外構はイメージです。
プラン紹介

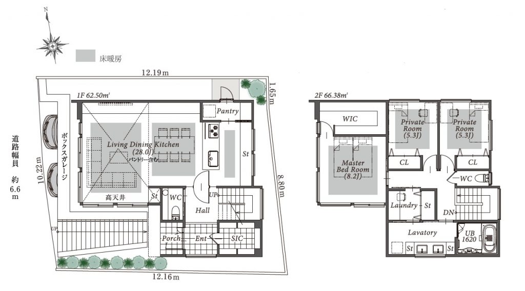
プラン
駐車スペース2台
土地面積 125.52㎡(約37.96坪)
1F 62.50㎡
2F 66.38㎡
建物面積 128.88㎡(約38.98坪)
新築一戸建価格14,500万円(税込)
床暖房位置・面積などは現況により変更になる場合がございます。現況優先とさせていただきます。
お車や植栽・外構はイメージです。
周辺環境・アクセス
閑静な街並みと教育施設へのアクセスが落ち着いた日々の暮らしを約束します。

阪急神戸線「岡本」駅
約350m 徒歩約5分

JR神戸線「摂津本山」駅
約450m 徒歩約5分

岡本南公園
約98m 徒歩約2分

松陰おかもと保育園
約350m 徒歩約5分

本山第一小学校
約600m 徒歩約8分

本山中学校
約650m 徒歩約9分
