分譲地について
高台に位置しているため陽当たりが良く、見晴らしの良い眺望が魅力的な『宝松苑』。
町の北側には森林が広がり、周辺には生垣のある家が多く、緑豊かな印象の街並みです。
立地を活かしたプランをご提案します。


| 名称 | MORES宝塚市宝松苑PROJECT |
| 所在地 | 宝塚市宝松苑11-2 (付近) |
| 交通 | 阪急今津線 「宝塚南口」駅 徒歩約13分 阪急今津線 「逆瀬川」駅 徒歩約19分 |
| 地目 | 宅地 |
| 用途地域 | 第一種低層住居専用地域 |
| 建ぺい率 | 50% |
| 容積率 | 100% |
| 道路幅員 | 北側 約6.1m 西側 約5.2m |
| 総区画数 | 全10区画 |
| 土地面積 | 150.06㎡(約45.39坪)~ |
| 情報提供日 | 2024年3月 |
街区画

| 号地 | 土地面積 | 新築一戸建価格(税込) |
| 1号地 / モデルハウス | ご成約済 | |
| 2号地 / モデルハウス | ご成約済 | |
| 6号地 / モデルハウス | ご成約済 | |
| 7号地 / 新築一戸建 | 165.06㎡(49.93坪) | 価格未定 |
| 8号地 / 新築一戸建 | 165.54㎡(50.07坪) | 価格未定 |
| 9号地 / 新築一戸建 | 165.57㎡(50.08坪) | ご商談中 |
| 10号地 / モデルハウス | ご成約済 |
| 号地 | 土地面積 | 土地価格 |
| 3号地 / 建築条件付売土地 | ご成約済 | |
| 4号地 / 建築条件付売土地 | ご成約済 | |
| 5号地 / 建築条件付売土地 | ご成約済 |
※面積などは現況により変更になる場合がございます。現況優先とさせていただきます。
プラン紹介

7号地プラン
4LDK+駐車スペース2台
土地面積 165.06㎡(約49.93坪)
1F 53.82㎡
2F 61.69㎡
建物面積 115.51㎡(約34.94坪)
新築一戸建価格 未定(税込)
※床暖房位置・面積などは現況により変更になる場合がございます。現況優先とさせていただきます。

8号地プラン
4LDK+駐車スペース2台
土地面積 165.54㎡(約50.07坪)
1F 59.20㎡
2F 51.34㎡
建物面積 110.54㎡(約33.43坪)
新築一戸建価格 未定(税込)
※床暖房位置・面積などは現況により変更になる場合がございます。現況優先とさせていただきます。

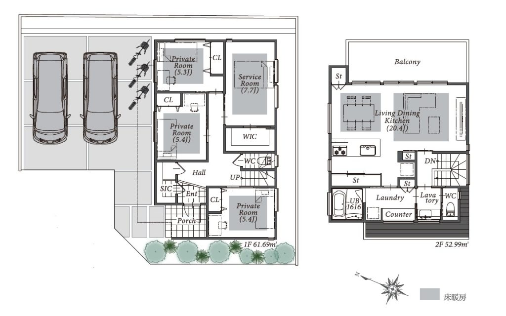
9号地プラン
駐車スペース2台
土地面積 165.57㎡(約50.08坪)
1F 61.69㎡
2F 52.99㎡
建物面積 114.68㎡(約34.44坪)
新築一戸建価格 未定(税込)
※床暖房位置・面積などは現況により変更になる場合がございます。現況優先とさせていただきます。
周辺環境・アクセス
閑静な街並みと教育施設へのアクセスが落ち着いた日々の暮らしを約束します。

阪急今津線 「宝塚南口」駅
約1000m 徒歩約13分

阪急今津線 「逆瀬川」駅
約1500m 徒歩約19分

阪急バス 「宝松苑」
約400m 徒歩約5分

武庫山幼稚園
約600m 徒歩約8分

宝塚第一小学校
約1100m 徒歩約14分

宝梅中学校
約450m 徒歩約6分
