分譲地について
落ち着いた雰囲気が魅力的な『神呪町』。
周辺にはお買い物施設や西宮市立中央病院をはじめとする病院が揃い、周辺環境充実。
最寄駅から「西宮北口」まで1駅で通勤やショッピングにも便利です。
国道171号線などの幹線道路も近く、お車での移動もスムーズです。


| 名称 | MORES西宮市神呪町ⅦPROJECT |
| 所在地 | 西宮市神呪町8-34(旧住居表示) |
| 交通 | 阪急今津線「門戸厄神」駅 徒歩約 9分 |
| 地目 | 宅地 |
| 用途地域 | 第一種中高層住居専用地域 |
| 建ぺい率 | 60% |
| 容積率 | 150% |
| 道路幅員 | 東側私道 約3.7m |
| 総区画数 | 全3区画 |
| 土地面積 | 86.71㎡(約26.22坪)~ |
| 取引態様 | 媒介 |
| 情報登録日 | 2026年2月 |
街区画

| 号地 | 土地面積 | 建物面積 | 新築一戸建価格(税込) |
| 1号地/新築一戸建 | 121.89㎡ (36.87坪) | 94.08㎡(28.45坪) | 6,580万円 |
| 2号地/新築一戸建 | 92.68㎡ (28.03坪) | 102.07㎡(30.87坪) | ご成約済 |
※面積などは現況により変更になる場合がございます。現況優先とさせていただきます。
※1号地部分には通路部分面積35.18㎡が含まれます
プラン紹介

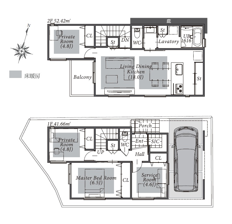
1号地プラン
駐車スペース1台
敷地面積121.89㎡(約36.87坪)
有効敷地面積86.71㎡(約26.22坪)
1F 41.66㎡
2F 52.42㎡
建物面積 94.08㎡(約28.45坪)
新築一戸建価格 6,580万円 (税込)
床暖房位置・面積などは現況により変更になる場合がございます。現況優先とさせていただきます。
お車や植栽、外構はイメージです。
周辺環境・アクセス
閑静な街並みと教育施設へのアクセスが落ち着いた日々の暮らしを約束します。
_HP600×4500317.jpg)
阪急今津線「門戸厄神」駅
約700m 徒歩約9分

中谷公園
約550m 徒歩約7分

西宮市役所甲東支所
約750m 徒歩約10分

鈴ノ音つばさ保育園
約270m 徒歩約4分

甲東小学校
約210m 徒歩約3分

甲陵中学校
約950m 徒歩約12分
