分譲地について
西宮七園のひとつ、甲陽園に位置する『新甲陽町』。
街路樹や生垣が豊かに整備されており、陽当たりも良く長閑な住環境。
野鳥も訪れる自然豊かな大池公園ではお散歩やジョギングに最適スポット。
スーパーや病院も近く暮らしやすい街並みです。





| 名称 | MORES西宮市新甲陽町ⅢPROJECT |
| 所在地 | 西宮市新甲陽町9-1(旧住居表示) |
| 交通 | 阪急甲陽線「甲陽園」駅 徒歩約 13分 阪神バス「新甲陽口」徒歩約5分 |
| 地目 | 宅地 |
| 用途地域 | 第一種低層住居専用地域 |
| 建ぺい率 | 40% |
| 容積率 | 100% |
| 道路幅員 | 南側 約9.8m、東側 約9.9m |
| 総区画数 | 全2区画 |
| 土地面積 | 158.65㎡(約47.99坪)~ |
| 取引態様 | 媒介 |
| 情報登録日 | 2026年3月 |
街区画

| 号地 | 土地面積 | 建物面積 | 新築一戸建価格(税込) |
| 1号地/新築一戸建 | 158.65㎡ (47.99坪) | 122.55㎡(37.07坪) | 価格未定 |
| 2号地/新築一戸建 | 173.73㎡ (52.55坪) | 133.71㎡(40.44坪) | 価格未定 |
※面積などは現況により変更になる場合がございます。現況優先とさせていただきます。
プラン紹介

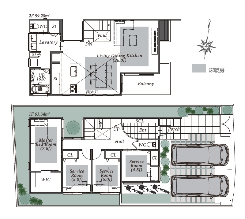
1号地プラン
駐車スペース2台
土地面積158.65㎡(約47.99坪)
1F 63.34㎡
2F 59.20㎡
建物面積 122.55㎡(約37.07坪)
新築一戸建価格 価格未定
床暖房位置・面積などは現況により変更になる場合がございます。現況優先とさせていただきます。
建築基準法により居室がサービスルーム(納戸)扱いになる場合があります。
お車や植栽、外構はイメージです。

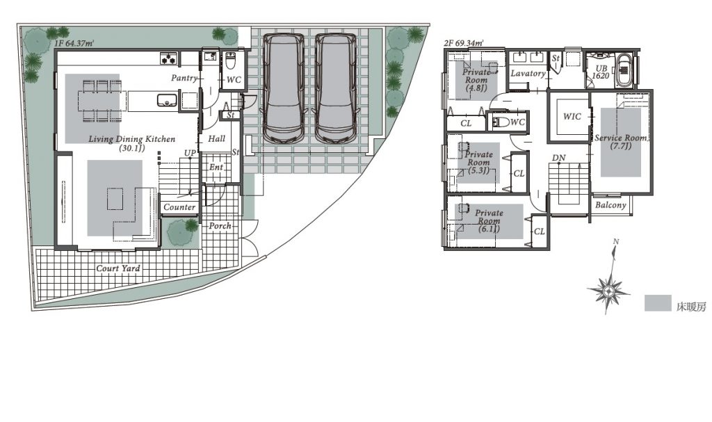
2号地プラン
駐車スペース2台
土地面積173.73㎡(約52.55坪)
1F 64.37㎡
2F 69.34㎡
建物面積 133.71㎡(約40.44坪)
新築一戸建価格 価格未定
床暖房位置・面積などは現況により変更になる場合がございます。現況優先とさせていただきます。
お車や植栽、外構はイメージです。
周辺環境・アクセス
閑静な街並みと教育施設へのアクセスが落ち着いた日々の暮らしを約束します。

阪急甲陽線「甲陽園」駅
約1000m 徒歩約13分

コープこうべ甲陽園店
約240m 徒歩約3分

いかり甲陽園店
約1000m 徒歩約13分

甲陽幼稚園
約850m 徒歩約11分

甲陽園小学校
約700m 徒歩約9分

上ヶ原中学校
約1000m 徒歩約13分
