分譲地について
洗練された住宅が建ち並ぶ、落ち着いた雰囲気の『浜町』。
海・川・緑に包まれた、開放感溢れる浜芦屋エリアは
日常にリゾートのようなゆとりを感じられる街。
スーパーや病院などが徒歩5分圏内に揃う住環境も魅力。

| 名称 | MORES芦屋市浜町ⅢPROJECT |
| 所在地 | 芦屋市浜町11-27(旧住居表示) |
| 交通 | 阪神本線「打出」駅 徒歩約 10分 JR神戸線「芦屋」徒歩約19分 |
| 地目 | 宅地 |
| 用途地域 | 第一種中高層住居専用地域 |
| 建ぺい率 | 60% |
| 容積率 | 200% |
| 道路幅員 | 南側 約5.5m |
| 総区画数 | 全2区画 |
| 土地面積 | 139.39㎡(約42.16坪)~ |
| 取引態様 | 媒介 |
| 情報登録日 | 2026年3月 |
街区画

| 号地 | 土地面積 | 建築条件付土地価格 |
| 1号地/建築条件付土地 | 139.39㎡ (42.16坪) | 価格未定 |
| 2号地/建築条件付土地 | 140.13㎡ (42.38坪) | 価格未定 |
※面積などは現況により変更になる場合がございます。現況優先とさせていただきます。
プラン紹介

1号地参考プラン
駐車スペース2台
土地面積139.39㎡(約42.16坪)
1F 54.17㎡
2F 54.17㎡
建物面積 108.34㎡(約32.77坪)
建築条件付土地価格 価格未定
床暖房位置・面積などは現況により変更になる場合がございます。現況優先とさせていただきます。
建築基準法により居室がサービスルーム(納戸)扱いになる場合があります。
お車や植栽、外構はイメージです。
建物価格は床面積100㎡までを2,200万円(税込)とします。
別途建築確認申請費用が必要です。
地盤改良が必要な場合、別途地盤改良工事費用が必要です。

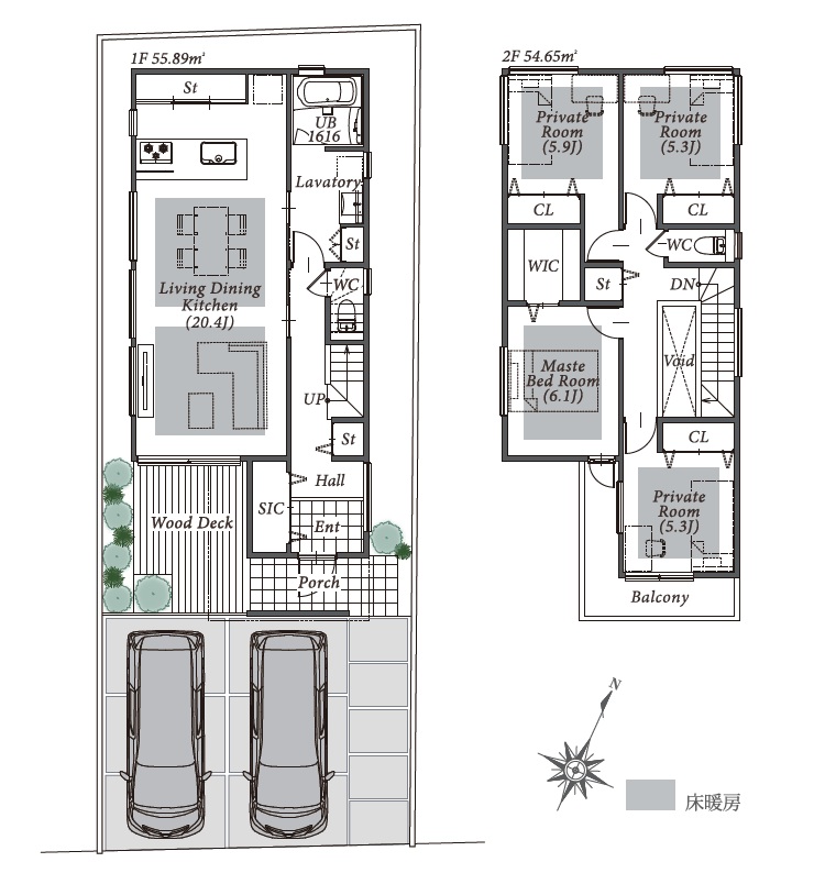
2号地参考プラン
駐車スペース2台
土地面積140.13㎡(約42.38坪)
1F 55.89㎡
2F 54.65㎡
参考プラン建物面積 110.54㎡(約33.43坪)
建築条件付土地価格 価格未定
床暖房位置・面積などは現況により変更になる場合がございます。現況優先とさせていただきます。
建築基準法により居室がサービスルーム(納戸)扱いになる場合があります。
お車や植栽、外構はイメージです。
建物価格は床面積100㎡までを2,200万円(税込)とします。
別途建築確認申請費用が必要です。
地盤改良が必要な場合、別途地盤改良工事費用が必要です。
周辺環境・アクセス
閑静な街並みと教育施設へのアクセスが落ち着いた日々の暮らしを約束します。

阪神本線「打出」駅
約800m 徒歩約10分

JR神戸線「芦屋」駅
約1500m 徒歩約19分

打出浜公園
約160m 徒歩約2分

西蔵こども園
約210m 徒歩約3分

宮川小学校
約450m 徒歩約6分

精道中学校
約600m 徒歩約8分
