分譲地について
石屋川が近くを流れ、静かで落ち着いた住宅街『御影中町7丁目』。
周辺には御影クラッセなど商業施設や病院など、生活に必要な施設が揃っています。
幼稚園や小中学校が徒歩約2分圏内にあり、子育て世代にも安心な住環境。
阪神とJRの2沿線が利用可能。阪神高速や国道2号線も近くお車での移動もスムーズです。

| 名称 | MORES神戸市東灘区御影中町7丁目PROJECT |
| 所在地 | 神戸市東灘区御影中町7丁目5-10(旧住居表示) |
| 交通 | 阪神本線 「御影」駅 徒歩約 5分 JR神戸線「住吉」駅徒歩約14分 |
| 地目 | 宅地 |
| 用途地域 | 第一種中高層住居専用地域 |
| 建ぺい率 | 60% |
| 容積率 | 160% |
| 道路幅員 | 西側 約4.0m |
| 総区画数 | 限定1区画 |
| 土地面積 | 161.85㎡(約48.95坪) |
| 取引態様 | 媒介 |
| 情報登録日 | 2026年4月 |
街区画

| 号地 | 土地面積 | 土地価格 |
| 建築条件付売土地 | 161.85㎡ (48.95坪) | 6,680万円 |
※面積など現況により変更になる場合があります。
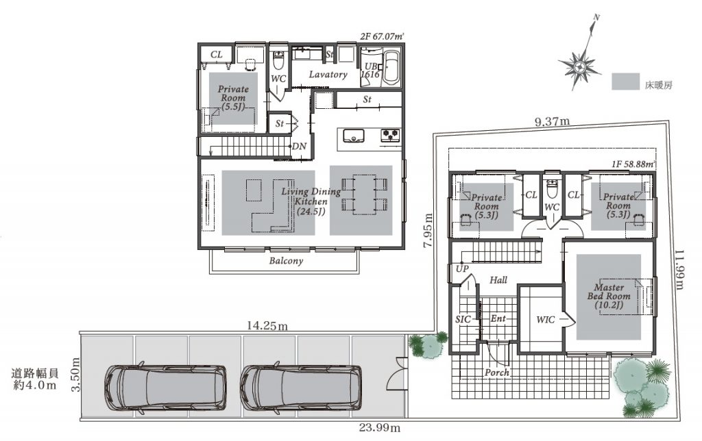
プラン紹介

参考プラン
駐車スペース2台
土地面積 161.85㎡(約48.95坪)
1F 58.88㎡
2F 67.07㎡
参考プラン建物面積 125.95㎡(約38.09坪)
建築条件付土地価格 6,680万円
参考プラン建物価格 2,946万円(税込)~
※面積など現況により変更になる場合がございます。現況優先とさせていただきます。
※建物価格は建物床面積100㎡までを2,420万円(税込)とします。参考プランの建物価格は2,836万円(税込)~となります。
※別途建築確認申請費用が必要です。
※地盤改良が必要な場合、別途地盤改良工事費用が必要です。
※外構・植栽・デッキ・オプションなどは別途費用が必要です。
周辺環境・アクセス
閑静な街並みと教育施設へのアクセスが落ち着いた日々の暮らしを約束します。

阪神本線「御影」駅
約400m 徒歩約5分

JR神戸線「住吉」駅
約1100m 徒歩約14分

みかげ公園
約190m 徒歩約3分

御影幼稚園
約120m 徒歩約2分

御影小学校
約98m 徒歩約2分

御影中学校
約140m 徒歩約2分
